€ 395.000
Entrare in questa villa a Strada Castellaccio è fare un passo in un luogo che sembra esserti sempre appartenuto. Non appena si varca la soglia, si percepisce immediatamente la qualità dei materiali e la cura amorevole che avvolge ogni angolo. È una casa che ti accoglie, sussurrando storie di comfort e vita serena, una vera e propria dimora solida e accogliente.
L’abbraccio Accogliente del Piano Terra
Il piano terra, interamente dedicato all’abitazione principale, è il trionfo del calore domestico. Un ingresso discreto si apre subito verso il Salone, uno spazio generoso e luminoso, sapientemente diviso per ogni momento della giornata.
Sulla destra, la zona si articola: la sala da pranzo invita alla convivialità e alle lunghe tavolate festive, lasciando poi spazio al soggiorno, il vero centro di relax. Qui, tra i divani, si annidano le serate più tranquille, protette da un senso di solidità e benessere dato dalle finiture di pregio che rivestono la casa, dalle finestre alle inferriate.
La cucina ha l’ angolo cottura che si apre su un tinello dove il protagonista è il grande camino, pronto a scaldare l’ambiente e l’anima. Da qui, la portafinestra apre sull’esterno, verso un magnifico Terrazzo/Loggiato di 60 mq. Questo spazio non è un semplice esterno, ma una vera e propria stanza aggiuntiva, comoda e confortevole, un patio coperto dove godersi l’aria aperta in ogni periodo dell’anno.
Dalla parte opposta della zona giorno, il disimpegno funge da varco verso la Zona Notte: tre camere da letto e due bagni, un nido privato dove il riposo è garantito dalla quiete e dalla sensazione di protezione.
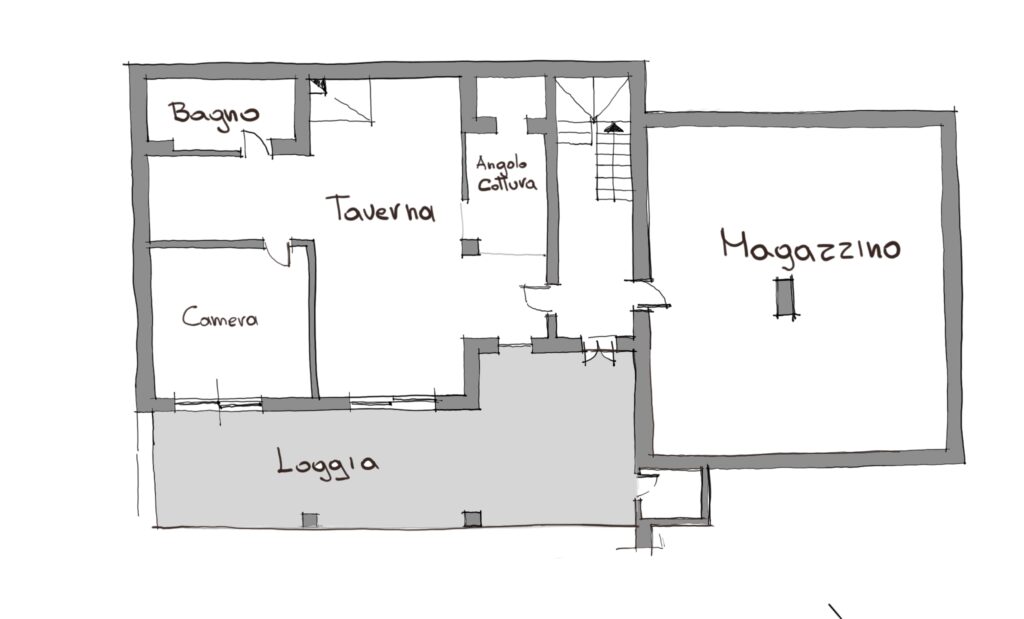
La Taverna
Nell’ingresso, una porta discreta cela la scala che scende al livello inferiore. Qui, i 170 mq della Taverna (catastalmente C/2) impeccabilmente rifinita e isolata da una intercapedine si presentano come un ambiente unico e articolato: angolo cottura ,un salone secondario con un altro camino scoppiettante, una zona pranzo e un’area divani. È lo spazio perfetto per l’ospitalità, completato da una camera da letto e un bagno .
La villa non ti chiede nulla, ti dà tutto: una dimora solida e rifinita, ricca di comfort moderni come pannelli fotovoltaici, riscaldamento a pellet centralizzato e materiali di ottima fattura. Nonostante la planimetria possa risultare “incastrata”, il comfort e la sensazione di un ambiente protetto e ben equipaggiato sono totali.
Il giardino
L’esterno è un’estensione sublime del comfort interno. Il giardino è curatissimo, un’oasi verde dove l’efficienza incontra l’eleganza. La gestione è impeccabile grazie al pozzo privato e al sofisticato impianto di irrigazione automatico.
L’eleganza del paesaggio è dominata da alberi maestosi: ulivi potati con sapienza, alberi da frutto rigogliosi e la maestosità di un grande Cedro del Libano che veglia sulla proprietà, conferendole un’aria di nobile bellezza. Palme decorative impreziosiscono gli angoli, mentre un dedicato spazio per l’orto attende chi ama coltivare.
| Superficie mq | mq 270 |
| Piano | Terra |
| Salone | n 1 |
| Cucina+ tinello+camino | n 1 |
| Camere | n 3 |
| Bagno | n 2 |
| Terrazzo | n 2 |
| Piano | Seminterrato |
| Salone doppio | Taverna+angolocottura |
| Camera | n 1 |
| Bagno | n 1 |
| Magazzino | n 1 |
| Locale Caldaia | n 1 |
| Posto Macchina | |
| Giardino | circa mq 8000 |
| Ape | in corso di definizione |



























